Phase 04 - Construction Documents
“The Nuts and Bolts”
TIMELINE 18 - 20 WEEKS
In the Construction Documents Phase, the design intent is translates into precise, buildable information. We break this stage into two parts, with the first (Phase 04A) focused on producing a complete package ready for Building Permit Submission and the second (Phase 04B) being a completed set of construction documents Issued for Tender (IFT).
Detailed coordination occurs with all disciplines to ensure as much information as possible is captured.
We digitally build our projects into a 3D BIM model using Archicad. This allows us to become immersed in the design and view it from multiple angles while discussing constraints with the team.
We encourage our clients to engage a quantity surveyor or general contractor throughout this process to ensure continued Integrated Budgeting. We understand how important the construction budget is for the bottom line and want to ensure that our time designing and detailing the building is efficient. We want to Value Engineer from the onset and work collaboratively with the client and construction team.
Phase 04A - Building Permit Submission
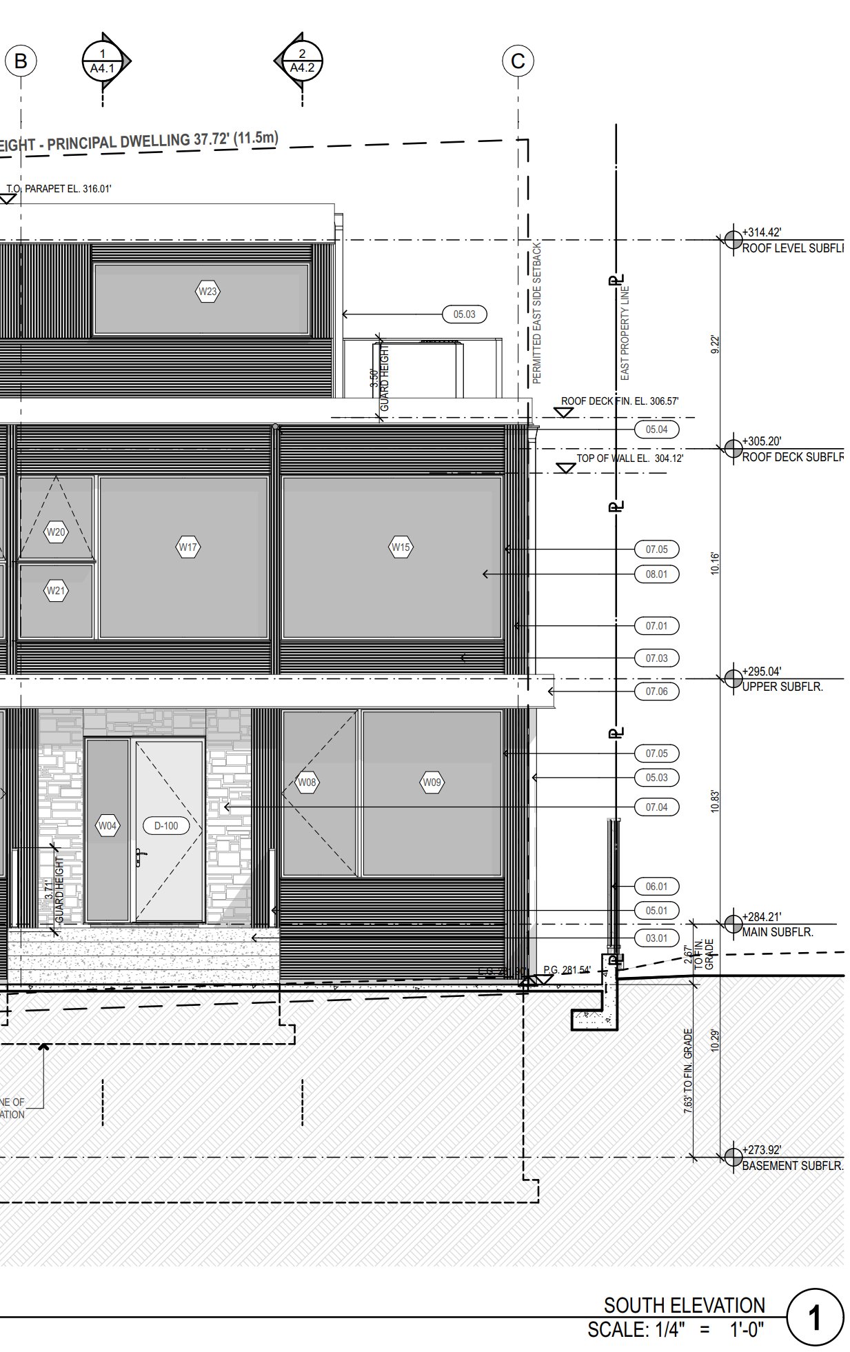
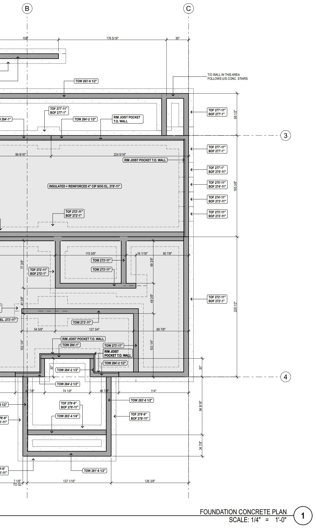
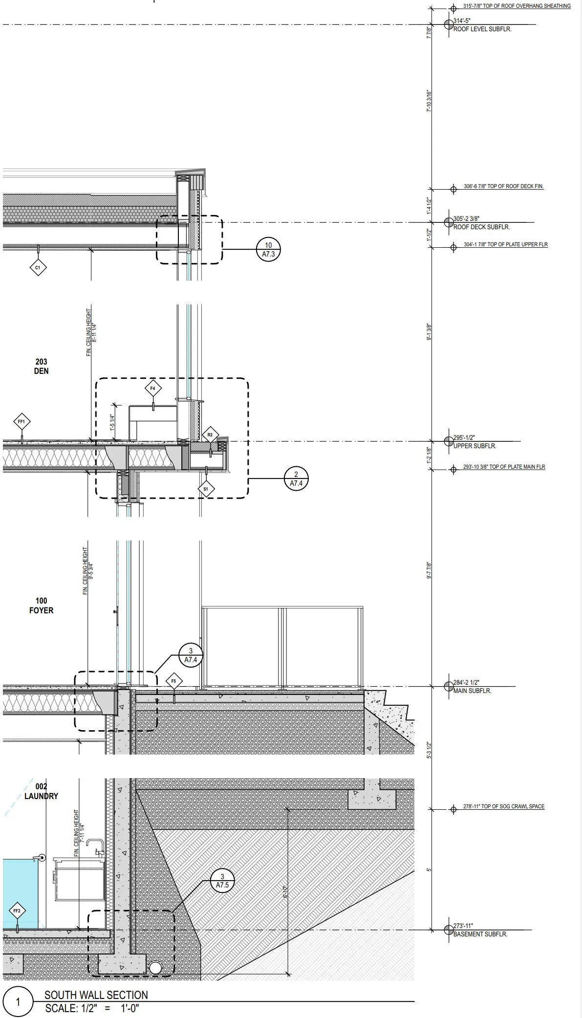
Turning a contemporary design into a successful building requires high-quality technical documentation. We prepare detailed drawings, schedules, and specifications that define how the project is constructed, finished, and fitted out. Every component is carefully considered to ensure it aligns with the overall design concept, resulting in a more cohesive and refined architecture.
Throughout this phase, we meet regularly with you to finalise material selections, product choices, and detailed design decisions. At the same time, we coordinate closely with consultants to fully integrate all aspects of the structure, building systems, and envelope and ensure all disciplines have the space they need.
Before the building permit is submitted, we comb through the checklists of required documents to ensure the package is complete. In our experience, the more complete a package, the smoother the municipal review becomes. This translates into fewer conditions and a faster approvals timeline.
Phase 04B - Issued for Tender Documents
Typically, there are more documents required for pricing out the project than are required for the building permit submission. This is why we try and submit the building permit as soon as possible in our process and leave the extra tender deliverables for afterwards.
Before tendering to contractors, we ensure that the full technical package is complete and clearly communicated because the quality of the tender returns depends entirely on the clarity and completeness of the documents issued. A well-coordinated set reduces risk during construction and enables more accurate pricing and secured trade contacts.
If the project is cost-sensitive, we may recommend updating the cost plan during Phase 04A. This allows us to test the design against budget expectations and create a strong foundation for negotiating scope, pricing, or value-engineering if required post-tender.
Procurement is the process by which construction services are sourced and contracted. While there are several approaches depending on the project's scale, complexity, and goals, we typically recommend the Design-Bid-Build method, which involves issuing the full technical package for competitive tendering. This method provides transparency, pricing clarity, and allows for more control over quality and design integrity.
During this stage, selected contractors are invited to review the documentation and submit their pricing—usually over a 6–8 week period. Once tenders are received, we guide you through a detailed review and comparison of the bids, ideally with input from a cost consultant. We may hold clarification meetings with contractors to address any questions or discuss construction methodologies.
This is also the time when negotiation may occur to refine pricing, align expectations, and ultimately select the most suitable contractor. The stage concludes with the signing of the construction contract, paving the way for the build to begin.

