Lions Bay Residence
-
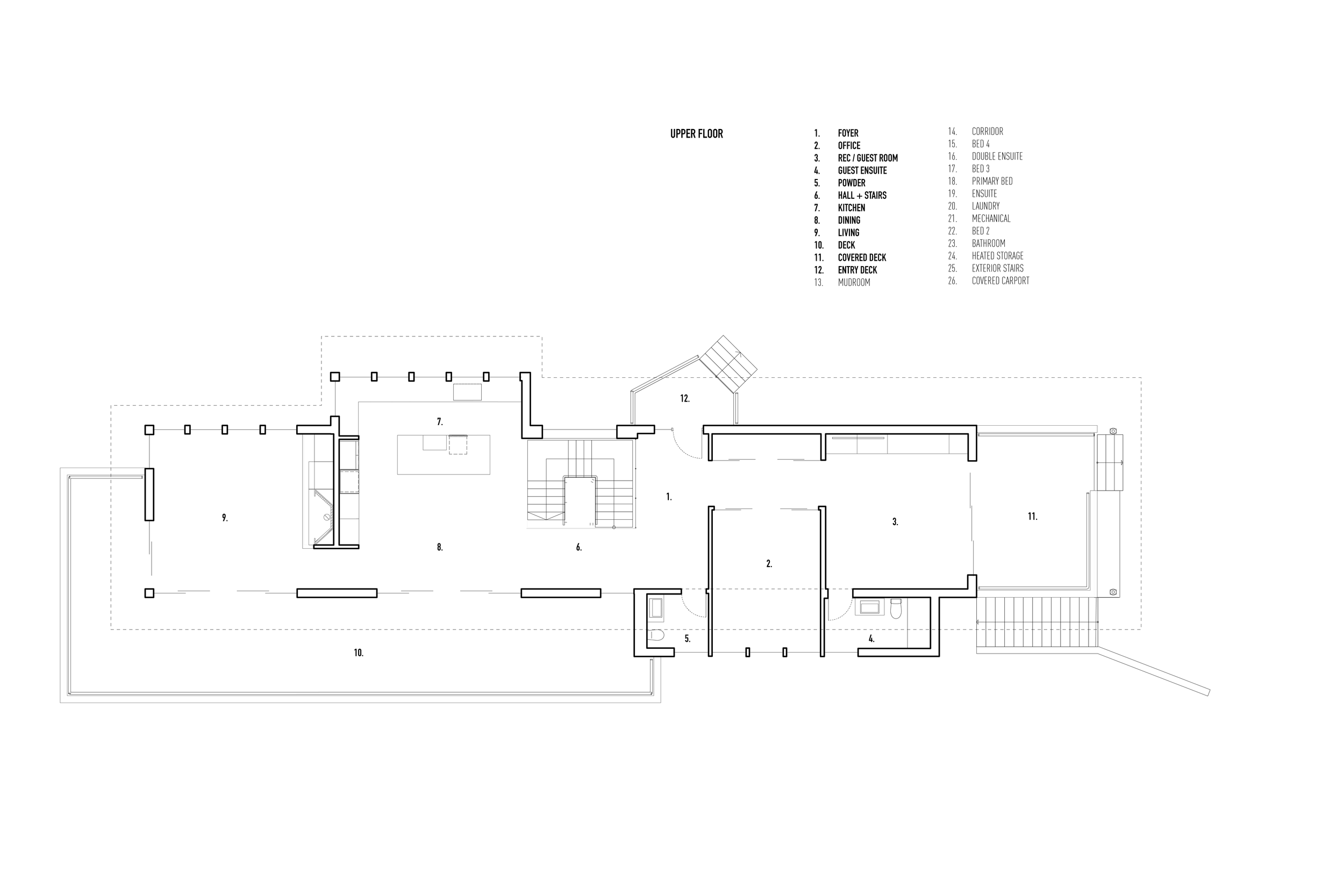
New custom single family home on a site with dramatic ocean views of Howe Sound and Gambier Island to the West and mature forest to the East. The brief called for 4 bedrooms and a rustic west coast modern feel. We had to address the steep terrain of the site while retaining of as many trees as possible. These constraints were the main drivers for siting the home to take advantage of the views.
-
Custom Single Family Residential
Lions Bay, BC
4 bedroom, 4.5 bath, 3800 sf
Building Permit
2024
Collaboration with CG construction

